Mc-Home bungalowontwerpen en bouwen B198 3 slaapkamers - McHome ontwerpen en bouwen van woningen

plaatje
logo mchome
Ga naar de inhoud

Ontwerpen én bouwen met Mc-Home.nl

moderne woningbouw levensloopbestendig

Bungalow  B198 met 3 slaapkamers
McHome B 198 bungalow plat dak type met 3 slaapkamers staalframebouw Nederland
McHome B 198 bungalow plat dak type met 3 slaapkamers staalframebouw Nederland
McHome B 198 bungalow plat dak type met 3 slaapkamers staalframebouw Nederland
McHome B 198 bungalow plat dak type met 3 slaapkamers staalframebouw Nederland
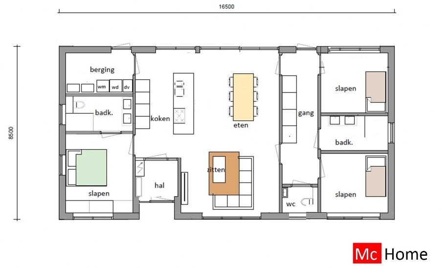
Onder ziet u een voorbeeldindelingen van bovenstaand ontwerp. Het kan geheel naar uw wens worden aangepast.
McHome B 198 bungalow plat dak type met 3 slaapkamers staalframebouw Nederland
McHome B 198 bungalow plat dak type met 3 slaapkamers staalframebouw Nederland
McHome B 198 bungalow plat dak type met 3 slaapkamers staalframebouw Nederland
McHome B 198 bungalow plat dak type met 3 slaapkamers staalframebouw Nederland
McHome B 198 bungalow plat dak type met 3 slaapkamers staalframebouw Nederland
Onder ziet u een interieurplaatjes van vergelijkbare bungalows als B198.
McHome.nl interieur inspiratie foto's renders
McHome.nl interieur inspiratie foto's renders
McHome.nl interieur inspiratie foto's renders
McHome.nl interieur inspiratie foto's renders
McHome.nl interieur inspiratie foto's renders
McHome.nl interieur inspiratie foto's renders
McHome.nl interieur inspiratie foto's renders
McHome.nl interieur inspiratie foto's renders
McHome.nl interieur inspiratie foto's renders
McHome.nl interieur inspiratie foto's renders

Kosten ontwerp B198

Wilt u meer weten over prijzen voor de staalframeconstructie, montage, casco, cascoplus of sleutelklare uitvoering?

Stuur een mail!

Terug naar de inhoud