Kubustische woning M329
Eigentijdse moderne levensloopbestendige woning
						
						
						
						
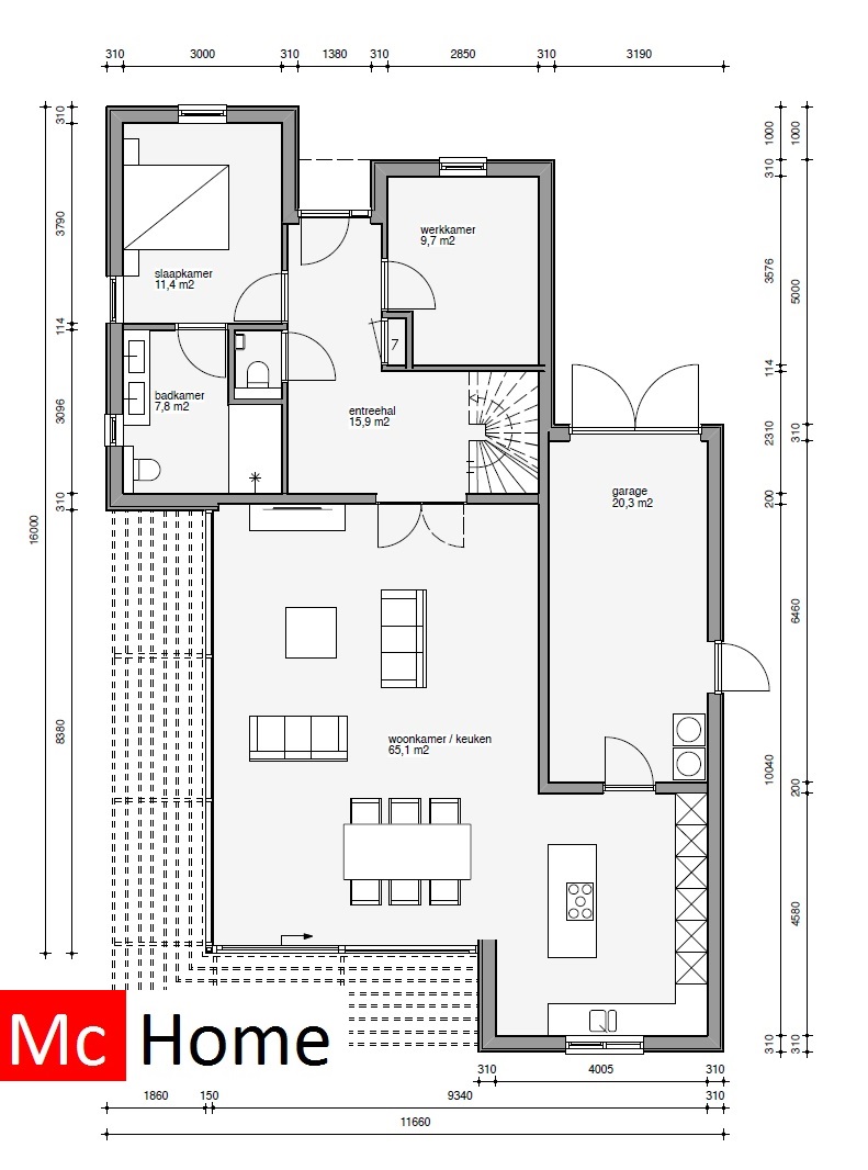
						Onderstaand vindt u een voorbeeld van de ruimte-indelingen van dit ontwerp. De indeling is volledig aan te passen aan uw eigen wensen: ruimtes kunnen verdwijnen, worden toegevoegd of worden aangepast qua afmetingen. 
						
						
