Mc-Home bungalowontwerpen en bouwen B157 - McHome

plaatje
logo mchome
Ga naar de inhoud

Ontwerp Bungalow B157






Mc-Home ontwerp B157 platdak bungalow bouwen staalframebouw Nederland
Mc-Home ontwerp B157 platdak bungalow bouwen staalframebouw Nederland
Mc-Home ontwerp B157 platdak bungalow bouwen staalframebouw Nederland
Mc-Home ontwerp B157 platdak bungalow bouwen staalframebouw Nederland
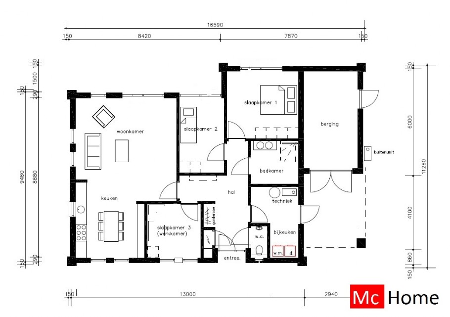
Onder ziet u een voorbeeldindelingen van bovenstaand ontwerp. Het kan geheel naar uw wens worden aangepast.
Mc-Home ontwerp B157 platdak bungalow bouwen staalframebouw Nederland

Kosten ontwerp B157

Wilt u meer weten over prijzen voor de staalframeconstructie, montage, casco, cascoplus of sleutelklare uitvoering?

Stuur een mail!

Terug naar de inhoud