Ontwerpen én bouwen van nieuwe woningen.
De mooiste ontwerpen en de beste techniek.
Vraag HIER gelijk een prijslijst voor ALLE woningen aan!
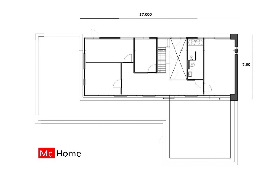
Kubustische woning M381
Onderstaand vindt u een voorbeeld van de ruimte-indelingen van dit ontwerp. De indeling is volledig aan te passen aan uw eigen wensen: ruimtes kunnen verdwijnen, worden toegevoegd of worden aangepast qua afmetingen.
