schuurwoning met kap en aanbouw K 154 - McHome

plaatje
logo mchome
Ga naar de inhoud
Schuurwoning Type 154
( Ontwerp TC Wonen)
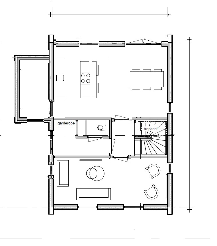
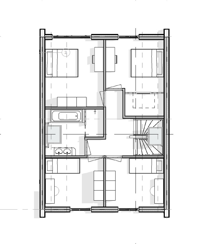
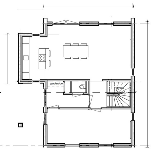
Mc-Home schuurwoningen K154 in diverse afmetingen
Mc-Home schuurwoningen K154 in diverse afmetingen
Mc-Home schuurwoningen K154 in diverse afmetingen
Mc-Home schuurwoningen K154 in diverse afmetingen
De indelingen van de Mc-Home ontwerpen kunnen in veel gevallen geheel worden aangepast naar uw wensen en eisen en de mogelijkheden van uw kavel én uw bouwbudget.


Mc-Home schuurwoningen K154 in diverse afmetingen
Mc-Home schuurwoningen K154 in diverse afmetingen
Mc-Home schuurwoningen K154 in diverse afmetingen
Wilt u weten wat dit ontwerp en de bouw ervan kost?

Of wilt u het ontwerp laten aanpassen naar uw wensen en voor uw kavel?

b.v. afmeting 7 x 11, 7 x 12  of 8 x 11, 8 x 12?

Terug naar de inhoud