klassieke woning met kap en aanbouw K 153 - McHome

plaatje
logo mchome
Ga naar de inhoud
Klassieke ontwerpen: woning met hellend dak en aanbouw
Type 153 ( Ontwerp GeWoon Architecten)
K 153 traditioneel klassiek ontwerp woning met kap en aanbouw
K 153 traditioneel klassiek ontwerp woning met kap en aanbouw
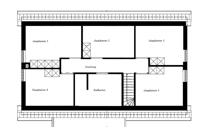
De indelingen van de Mc-Home ontwerpen kunnen in veel gevallen geheel worden aangepast naar uw wensen en eisen en de mogelijkheden van uw kavel én uw bouwbudget.


K 153 traditioneel klassiek ontwerp woning met kap en aanbouw
K 153 traditioneel klassiek ontwerp woning met kap en aanbouw
Wilt u weten wat dit ontwerp en de bouw ervan kost?

Of wilt u het ontwerp laten aanpassen naar uw wensen en voor uw kavel?

b.v. afmeting 13 x 8, 12 x 7, 12 x 6?

Terug naar de inhoud