Mc-Home moderne schuurwoning
Ontwerp Kap 152


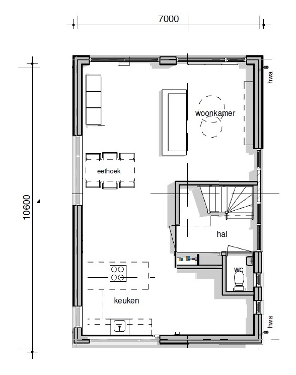
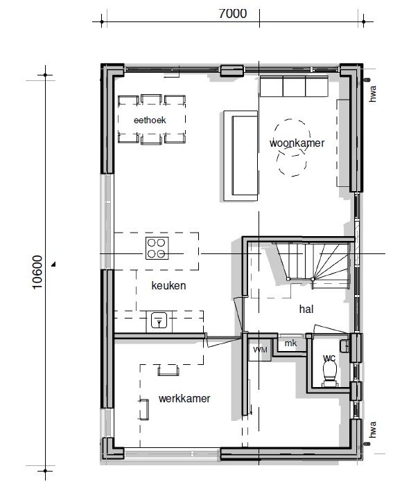
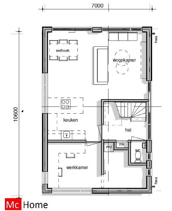
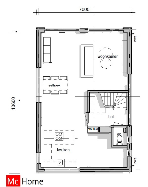
De indelingen van de Mc-Home ontwerpen kunnen in veel gevallen geheel worden aangepast naar uw wensen en eisen en de mogelijkheden van uw kavel én uw bouwbudget.



Wilt u weten wat dit ontwerp en de bouw ervan kost?
Of wilt u het ontwerp laten aanpassen naar uw wensen en voor uw kavel?